力擎機械設備租賃有限公司
電 話:136-8888-2255
地 址:
規劃公示!滕州南部與經開區交界的產城融合街區
根據《中華人民共和國城鄉規劃法》、《山東省城鄉規劃條例》等有關規定,現將滕州市賈莊小學街區控制性詳細規劃予以公示,征求規劃地段內利害關系人意見,內容如下:
1、規劃內容:
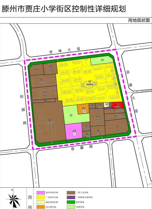
(1)規劃范圍:恒源路以東、益康大道以西、青啤大道以南、春藤路以北,總用地面積52.68公頃。
(2)功能定位:充分利用街區位于產城融合片區的區位優勢,完善公共服務設施配置,構建十五分鐘生活圈,打造成為城區范圍內服務設施配套完善、宜商宜業宜居的綜合性街區。
(3)規劃目標:滕州南部與經開區交界的產城融合街區。
(4)用地布局:總用地面積為52.68公頃,全部為城市建設用地。其中居住用地22.44公頃,公共管理與公共服務設施用地4.47公頃,商業服務業設施用地0.94公頃,工業用地12.25公頃,道路與交通設施用地6.20公頃,公用設施用地1.03公頃,綠地與廣場用地5.35公頃。
(5)道路交通:街區周邊道路分為主干路、次干路和支路三個等級,形成“兩橫兩縱一十字”的道路系統結構。
主干路3條,分別是恒源路、益康大道、青啤大道,紅線寬度分別為42米、60米、42米,沿路綠帶寬度為10米、12米、20米。
次干路1條,為春藤路,紅線寬度30米,沿路綠帶寬度25米。
支路1條,為建議性街區內部道路,紅線寬度14-15米,沿路綠帶在有條件情況下結合人行道補充設置。
2、公示時間:2022年8月30日—2022年9月29日。
3、公示方式:網站公示。
4、意見反饋
(1)公眾及周邊業主應當在公示時間內,按照公示要求的方式,提交反饋意見。所提意見應簽署真實姓名、住址及聯系方式,組織或單位提交反饋意見應加蓋公章,注明聯系人及聯系方式。
(2)公示期間如有意見或建議需書面反饋,請直接將意見反饋到滕州市規劃編制研究中心規劃編制室,截止日期為2022年9月29日(如郵寄,以郵戳日期為準)。
5、郵箱:tzghbzk 163.com




力擎機械設備租賃有限公司專業出租(雙排座防撞車、雙排座安全防撞車、大型安全緩沖車、中型防撞緩沖車、養護防撞車),公司提供租賃全國范圍內的高速公路、隧道、橋梁、公路等路段養護施工救援,隧道施工單位、維修養護單位的檢測人員、維護施工人員,提供最快捷、專業、安全的操作平臺。聯系熱線:136-8888-2255
鄭重承諾:1、24小時防撞緩沖車租賃熱線開通,隨時為您服務。2、受理各種包日、包月、包年等業務。3、租價低平,絕對優于同行。 4、配備專業工作人員,可一條龍完成所需要做的工作。24小時出租電話:136-8888-2255
